Hüllrohre für Spannbeton

Längsgeschweißt mit breiter Innenwelle

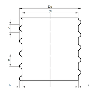
Die breit angelegte Wendelrille vergrößert die Gleitfläche des Hüllwellrohres. Dadurch wird eine gleichmäßige Auflage der Spannstähle erreicht. So werden beim Einziehen und Spannender Spannstähle erhöhte Reibungswiderstände vermieden. Die Wellung gewährleistet  trotz hoher Biege- und Querlaststeifigkeit eine ausgezeichnete Biege-willigkeit. Das längsgeschweißte Hüllrohr garantiert Dichtheit. Es kann keine Betonschlempe in den Gleitkanal eindringen. Im Rahmen des Qualitätssicherungs-Systems unterliegen die Hüllwellrohre strengen Prüfvorschriften und laufender Überwachung.

Ausführungen

Typ 7111 mit breiter Innenwelle, längsgeschweißt

Abmessungsbereich:
ab DN 21 bis DN 98 in
Abstufung von 5 mm

Werkstoff:
Kaltband St 2 EN 10139,
Dickentoleranz EN 10140
Auf Wunsch mit Spezialbehandlung zum vorübergehenden Korrosionsschutz

Lagerlänge:
5 m; abweichende Längen auf Wunsch lieferbar

Lieferart: in Bunde
zu 20 Längen bis DN 55
zu 15 Längen bis DN 70
zu 10 Längen bis DN 85
zu 5 Längen bis DN 98

Leider sind externe Einbindungen ohne entsprechende Cookies Zustimmung nicht verfügbar. Cookie Einstellungen bearbeiten